 
         
            モダンな漆喰の柱とガラス張りの外装で完成当時その斬新なデザインは府下でも類を見ない美しい食堂でした。それから60年余の歳月が過ぎ、成長した隅々に刻まれたその姿は今でも愛着を感じさせます。ただ内装は時代を越させず備品も老朽化が進んでおり、空調設備も無く夏や冬は過酷な環境です。
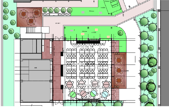
今回の改修計画では、それらの問題を改善するとともに、変わりゆく教育現場のニーズに対応すべく基本設計を進めました。食堂機能だけでなく生徒達が自主的に参加するアクティブラーニングスペースとしてプレゼンテーションやグループディスカッション、リベートなどの自ら知的探究心を高める授業が行える環境を提供したいと思います。プロジェクター投影可能な大きなホワイトボード、自由に組合わせが出来るテーブルや外部にはカフェテラスや芝生ゾーン等、生徒達が楽しく、豊かに過ごせるスペース【やまこうコミュニティラボ】を提供します。
 
             
            
                食堂・カフェテラス・各教科授業・プレゼン授業・授業視察会・自由学習・自主学習
                グループディスカッション・パネルディスカッション・講演会・学習発表会・会議
                ミーティング・各期同窓会・各クラブ総会・PTA会・各種委員会・各種イベント
            
 
         
             
             
             
             
            